Korean Medicine Hospital of Daejeon University
| 완공년도 | 2019 |
| 위치 | 서울 문정동 |
| 대지면적 | 1,038㎡ |
| 건축면적 | 606㎡ |
| 연면적 | 8,156㎡ |
| Structural engineer | 더나은 구조 |
| Mechanical engineer | 디이테크 |
| Electrical engineer | 대경전기 |
| Contractor | 보미건설 |
| Lighting design | 뉴라이트 |
| 완공년도 | 2019 |
| 위치 | 서울 문정동 |
| 대지면적 | 1,038㎡ |
| 건축면적 | 606㎡ |
| 연면적 | 8,156㎡ |
| Structural engineer | 더나은 구조 |
| Mechanical engineer | 디이테크 |
| Electrical engineer | 대경전기 |
| Contractor | 보미건설 |
| Lighting design | 뉴라이트 |
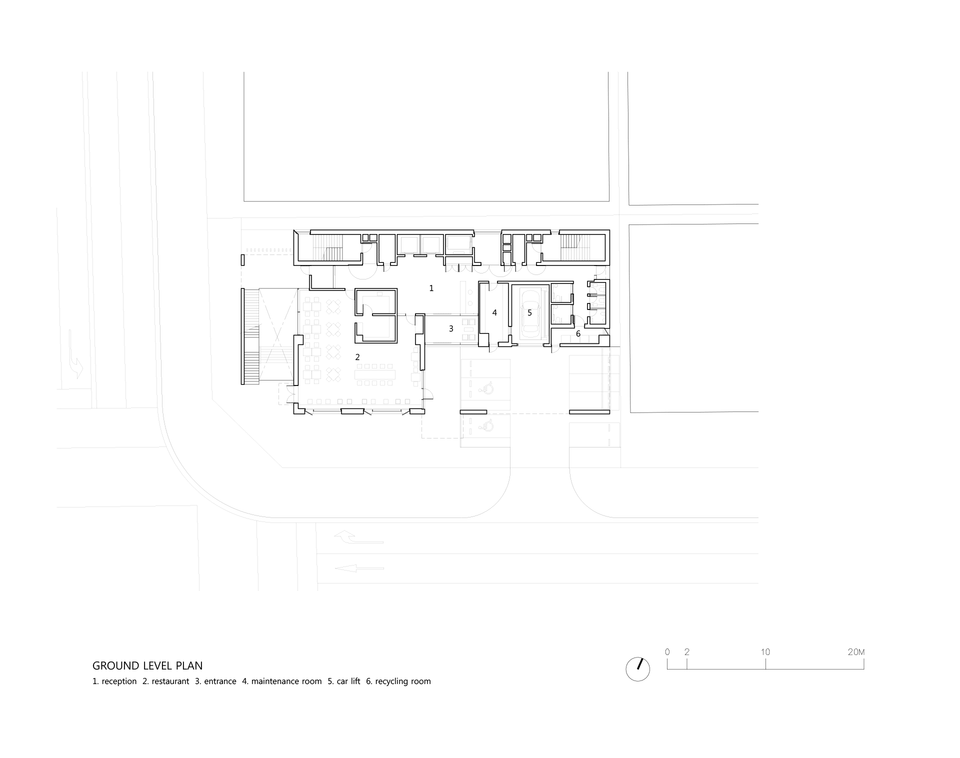
오랜 기간동안 농지로 남아 있었던 서울 외곽의 문정동은 지난 10년 간 고층의 빌딩들이 빽빽이 들어서 천지개벽한 곳이다. 이곳에 대전대학교의 한방병원 및 서울캠퍼스가 들어서게 된 것은 지방의 대학으로서 미래에 대한 전략적 가치 때문이었다. 대전대학교는 사랍학교로 그 재단이 한방병원을 운영하여 얻는 수익금이 크다. 이미 대전과 천안에 큰 한방병원을 운영하고 있는데, 이제 서울의 신흥개발지인 이곳에서도 한방병원을 개설하고 학교의 서울 기지로 삼는 것이다.
대지위치는 교차로에 접하여 인지성이 크며, 이웃한 다른 고층이 대부분 정면성만을 가지는데 비해 이 건축은 세 방향 모두가 중요한 입면이 된다. 병원의 내부기능이 층별로 다 달라지는 만큼 입면의 형성도 내부의 공간을 그대로 나타내어 비교적 다양한 구성을 하며 교차로의 공공영역을 향한 면은 수직정원을 만들어 외부와 연결하도록 했다.
주변의 건축은 대부분 커튼월이나 금속재로 마감되어 급조한 듯했으니 이 지역의 진정성을 돋우기 위해서는 베이지 색의 노출콘크리트를 주재료로 사용하기로 한 것은 내부의 공간을 표현하기에도 적절한 방법이었다.
고층빌딩은 도시의 모뉴먼트이며 경우에 따라서는 그 이미지로 도시를 기억하기도 한다. 이 건축이 하나의 건물이지만 수직으로 적절한 크기로 분화되고 통합된 까닭에 친근하게 느껴진다면 이 신흥개발지역도 친밀한 장소가 될 수 있을 것이라 여겼다.
Munjeong-dong, an outskirt area of Seoul, where had remained a farmland for a long time, is a place of drastic change where high-rise buildings have been constructed for the past ten years. As this area has a strategic value of the future for a local university like Daejeon University, the Seoul Korean Medicine Hospital of the University was built here. This facility would function also as base camp in Seoul.
As the site of the buildings is in touch with the intersection, the location is good enough. In particular, while only one side of most of the neighboring high-rise buildings faces the road, three sides of the hospital building face the roads. Since the internal functions of the hospital are different for each floor, the façade should have various patterns related to internal functions. In addition, the sides of the hospital building, which face the intersection, were designed as if a vertical garden.
While most of the other surrounding buildings are finished with curtain walls or metal material, giving an impression of hurried and expedient construction, the exposed concrete as prevailing material, is adequate in order to enhance the characteristics of the area and express the internal space of the building.
High-rise buildings are monuments of a city, and in some cases, they are the images that represent the city. Though this building is just an architectural structure, if it feels familiar because of its vertically differentiated and integrated properly, it may help this new development area be an intimate one.